Descripción
Bodega en Parque Industrial Delta
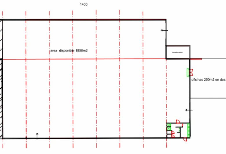
Presentamos una bodega de alto nivel ubicada en el reconocido Parque Industrial Delta, ideal para empresas que buscan eficiencia, amplitud y una infraestructura preparada para crecer.
– Área total construida: 1.380 m² de bodega + 250 m² de oficinas administrativas, listos para albergar operaciones de gran escala.
– Altura interior: 7,5 m en cumbrero y 4,5 m al inicio de la cubierta, garantizando óptima ventilación y versatilidad para almacenamiento eficiente o producción.
– Parqueaderos: 8 espacios disponibles para personal y visitantes.
– Accesos: 3 ingresos de 6 m de ancho, uno de ellos con altura especial para carga y descarga de transporte pesado.
– Servicios sanitarios: Baños independientes para personal de bodega y oficinas.
– Seguridad: Opcional implementación de sistemas de control y vigilancia adaptados a las necesidades de la operación.
Valor agregado
Este inmueble combina funcionalidad, ubicación estratégica y proyección empresarial, convirtiéndose en una oportunidad única para compañías que buscan optimizar su logística y fortalecer su presencia en un entorno industrial consolidado. Aquí tu inversión se traduce en crecimiento real.
Dirección
-
Ciudad: Quito
-
Provincia / Estado: Pichincha
-
País: Ecuador
Detalles
Actualizado en abril 8, 2026 a 1:33 pm-
ID de propiedad 35026
-
Precio $9,780/+ IVA / 630
-
Tamaño de propiedad 1.630 m²
-
Parqueaderos 10
-
Tipo de propiedad Galpones / Bodegas
-
Estado de la propiedad Arriendo
Información de contacto
Ver anuncio- Jaime Carrillo Guevara
- 0992947189WhatsApp
Consultar sobre esta propiedad
Calculadora de hipotecas
-
Pago inicial
-
Financiamiento
-
Pago Mensual de la Hipoteca
0 Comentario
Escribe una reseña
Propiedades Similares
📲 098 701 0074 🌟🏭 ¡Alquiler de Bodegas Industriales 4.200 m² de Alto Impacto! 💼 Potencia Tu Inversión con Infraestructura Industrial Estratégica 🚛⚙️📈 #RentabilidadGarantizada
- Garantía 2 meses $15,000/+ IVA

